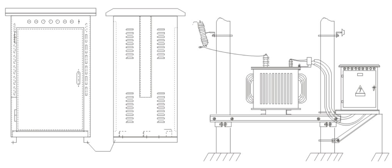
GGJ系列低压无功分相补偿成套装置(以下简称装置)是安装在变压器侧或负载旁的、以补偿变压器所带负荷为三相不平衡负荷所消耗无功的一种无功补偿装置。该装置分柱上式和落地安装式二种结构。
GGJ系列低压分相无功补偿成套装置按照机械行业标准《低压并联电容器装置》(JB7113-93)设计制造。其核心部分控制器,选用符合中华人民共和国电力行业标准的《低压无功补偿控制器订货技术条件》(DL/T597-1996)的控制器。该装置集分相补偿、电压监测、负荷监测、有功、无功计量于一体,具有补偿精度更精确,投切无浪涌冲击,对电网无谐波污染等特点,是城乡低压配电系统中改善功率因数,提高电压质量,降低线路损耗的理想产品。为电力部门分析电网配置,合理调度、经济运行提供可靠的数字依据。

| 项目 | 单位 | 数据 | 项目 | 单位 | 数据 | |
| 电压测量精度 | 级 | 0.5 | 电流测量精度 | 级 | 0.5 | |
| 功率因数测量精度 | 级 | 1.0 | 功率电能测量精度 | 级 | 1.0 | |
| 时间误差 | 秒/天 | <1 | 数据采样测量值 | 真有效值 | ||
| 最大输出回路 | 路 | 13 | 控制方式 | 手动自动 | ||
| 控制物理量 | 无功功率 | 投入、切出门限 | 0~84A,可设定 | |||
| 投切方式 | 自动循环投切 | |||||
| 补偿方式 | 三相补偿和分相补偿相结合的混合补偿方式 (可分组设置各组的补偿方式及控制参数) |
|||||
| 通讯方式 | 红外数传 | |||||
| 载波中心频率 | 100 | |||||
| 功耗 | ≤15 | |||||
| 与数字采集器传输波特率 | 1200/2400/4800 | |||||
| 数据采集器与计算机通讯波特率 | 2400/4800/9600/19200/38400 | |||||
| 数据存贮容量 - 数据存贮天数 | 60 | |||||
| 数据存贮容量 - 投切历史记录 | 608 | |||||
